工业废气/废水/粉尘一站式环保解决方案供应商 致力于服务国内乃至全球有污染的行业

咨询电话13628032096

漆彩之星粉尘处理

双叶家具

作者: 编辑: 来源: 发布日期: 2019.11.21
信息摘要:
双叶家具位于成都市新都区成都家具产业园,创办于2000年。是集客厅系列,卧室系列,办公系列的家具生产和销售的大型集团公司。双叶家具与我公司“…

项目名称:木工中央除尘

项目地点:叶家具工厂内

项目详情:

叶家具位于成都市新都区成都家具产业园,创办于2000年。是集客厅系列,卧室系列,办公系列的家具生产和销售的大型集团公司。叶家具与我公司“漆彩之星环保”自2014年合作至今,已有5年时间。在这5年里,“漆彩之星环保”先后承建了叶家具公司的喷漆房、打磨房、废气处理设备和木工中央除尘器。

木工作业通常是家具厂的基本生产工序,在生产过程中会产生很多大小不一的粉尘,其粉尘主要来源于锯、铣、刨和砂光等加工作业,此类灰尘浓度大,对人体健康造成威胁。为改善生产操作环境,叶家具公司在2018年3月5日,和我公司签订了两套木工中央除尘,一套是30KW处理风量38000M3/H,另一套是22KW处理风量35000M3/H。这两套木工中央除尘都配有火花探测系统,在安全生产方面起到了保驾护航的作用,完全符合政府安全部门安全生产的要求。

叶厂方提供数据,设计两套除尘系统方案如下:

第一套木工吸尘总风量为38000M3/H,处理风量38000M3/H,覆盖率100%;选用1台30KW风机;设计选用1台STZX-30KW脉冲布袋除尘器进行收集,尾气达标排放(100mg/m³以下)

第二套木工吸尘总风量为35000M3/H,处理风量35000M3/H,覆盖率100%;选用1台22KW风机;设计选用1台STZX-22KW脉冲布袋除尘器进行收集,尾气达标排放(100mg/m³以下)

三叶家具有限公司两套木工中央除尘器

上图为:叶家具有限公司两套木工中央除尘器


22_01

30_01

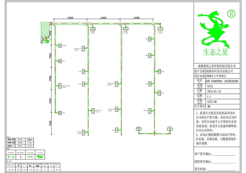
上图为:我公司为叶家具公司出具的《木工中央除尘》设计图纸

成都漆彩之星环保科技有限公司集研发、生产、销售、服务于一体,是一家实力强大、设备齐全、技术高超、服务完善的环保治理装备厂家。公司拥有国内大气污染防治设备,水污染防治设备制作技术和经验。汇聚了大量环境工程、环保机械、机电设备等方面各类技术人才,为实现企业的“科技环保化”、“工业现代化”、 “节能高效化”创造了可靠平台。

咨询热线

13628032096

关注我们Follow us

微信二维码漆彩之星工业废气、粉尘一站式环保解决供应商

联系我们Contact us

电话
13628032096/028-83013832

QQ
531093099

邮箱
531093099@qq.com

地址
四川省成都市新都区宝光大道北段483号

成都漆彩之星环保科技有限公司 版权所有 备案号:蜀ICP备12031938号-2 百度统计技术支持: 牛商股份